The listing has been sold or is no longer available.Please contact us here, and we'll do our best to find a suitable alternative.
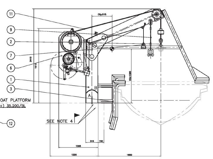
DAVIT for Rescue Boat
2-off Rescue Boat Davit available for sale from Saipem after the completion of the Kaombo FPSO project. These are suitable for deploying rescue boat of weight 1,700kg or 2,195kg with 6 persons included. Outreach = 1.45m, Hoist speed = 18m/min. These it...
Details
Further details within the attached documentation.
Show more
Show less
Explore similar listings
This site uses cookies to give you the best online experience. If you continue to use this site, you agree to the use of cookies.
