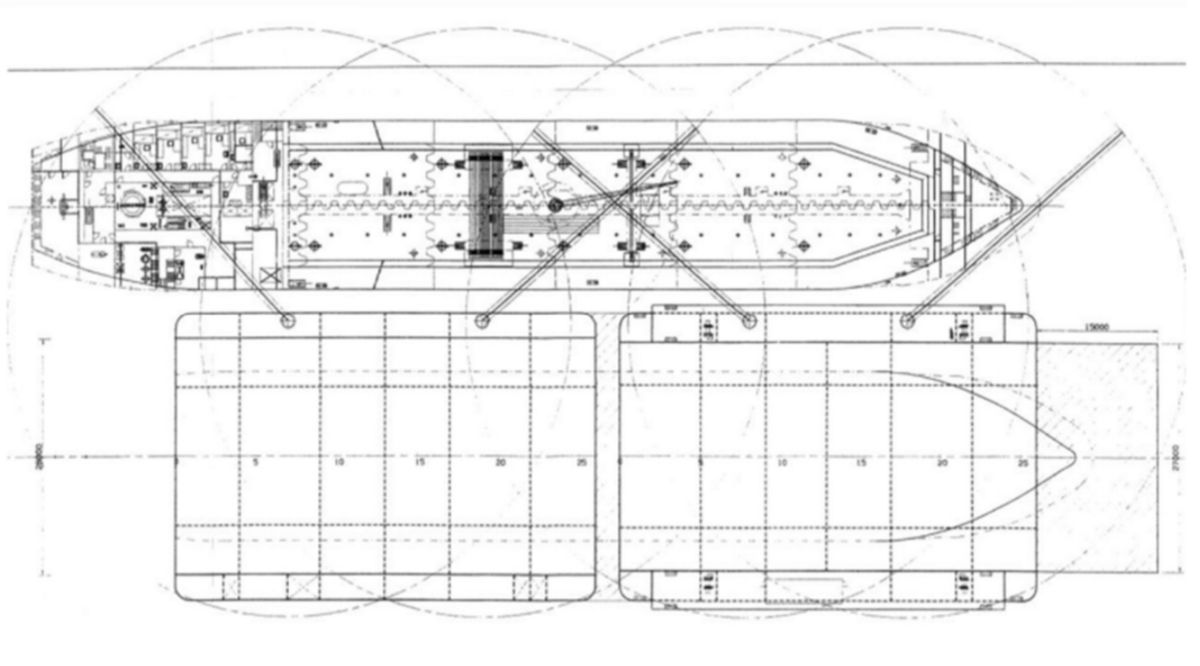
10,000T Floating Dry Dock
10,000T Floating dock available for sale. This medium-range dock is in excellent condition and ready for immediate operation. See below for further information or contact us directly.
Details
Principle details:
- Originally built in 1986 and refurbished/reconfigured in 2008 as a medium-sized dock.
- Has been operated regularly and inspected / maintained to a high standard.
- Available for inspection at short-notice.
Contact us for further information.
Show more
Show less
This site uses cookies to give you the best online experience. If you continue to use this site, you agree to the use of cookies.








