Onshore & Offshore Service Module
Onshore / Offshore service module is available for immediate sale. See below for further information
Details
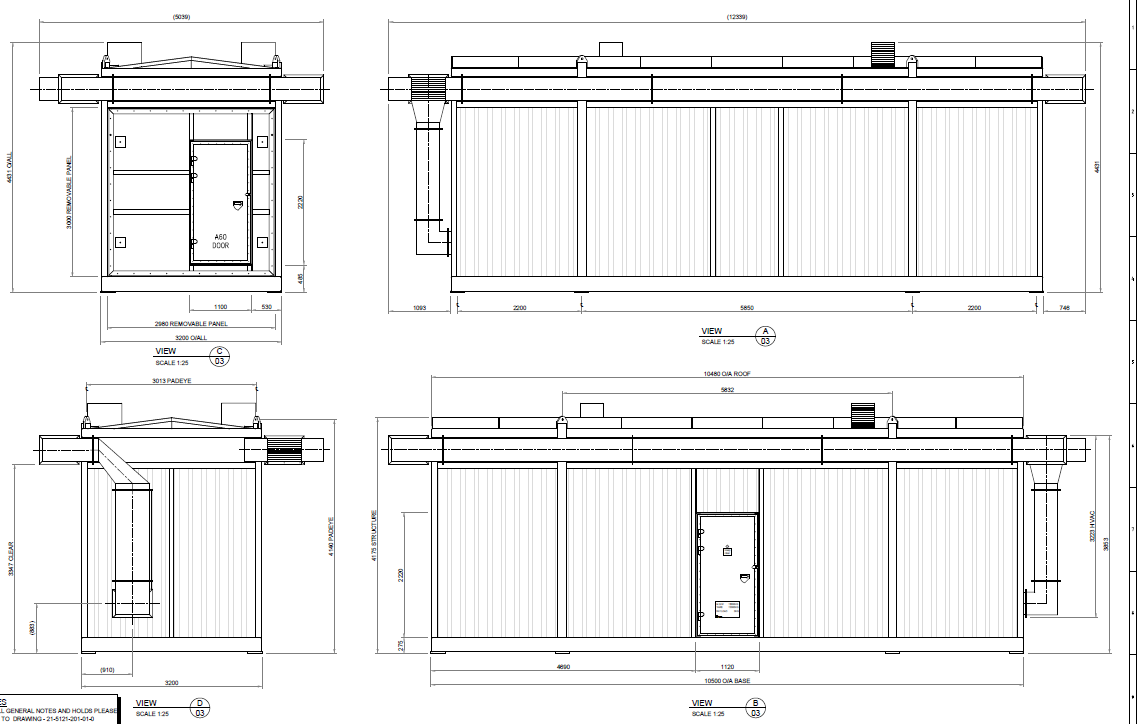
The module was originally designed to be a Safe Area rated, Thyristor and Transformer Plug and Play Onshore Module, however, the project was cancelled. The container is a shell with the the following dimensions:
Dimensions: (L) 10,500mm X (W) 3,200mm X (H) 4,200mm.
Contact us for further information on pricing.
Show more
Show less
This site uses cookies to give you the best online experience. If you continue to use this site, you agree to the use of cookies.





